
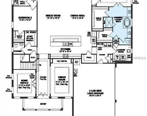
Pre-Construction to be built. estimated completion date August 2018. One of your last opportunities to own a BRAND NEW HOME on the shores of LAKE HANCOCK. This Lauriston floorplan is a Behemoth, allowing you to truly check off every box of your must have wishlist. TWO LUXURIOUS OWNERS RETREATS ( one on each floor), ADDITIONAL DOWNSTAIRS ENSUITE, MASSIVE GREATROOM and kitchen area, private home office, elegant dining room, ENORMOUS BONUS ROOM and ADDITIONAL MEDIA ROOM and yet another ADDITONAL ENSUITE upstairs, 2 bed and another FULL BATH… OVER 5300 htd sq ft and this price includes YOUR OWN PRIVATE BOAT DOCK ! You can still select color options (price subject to change) but it is already heavily upgraded with a list including Quartz counters, wood like tile throughout living areas, staggered cabinetry and oversized 17 ft glass wall in great room providing the perfect views of Lake Hancock. Located in the hottest area of Central Florida, Horizons West is breaking ground on hundreds of thousands of sq ft of retail and commercial space a few miles from your new home as well as the largest County recreational park in the area and the New Florida Hospital is set to break ground in 2018. Resort style clubhouse just down the street with amazing pool, fitness, tennis and more. Zoned for New Windermere High School. There are only 2 lots left in this community on this highly sought after Ski Lake and this is one of the most amazing floor plans you will ever come across. Truly amazing opportunity & DOCK included !
$999,990
Pending
Year Built:2018
County: Orange
List Price:$999,990
ADOM:15
Beds:6
Baths:5/1
Heated Sq Ft:5,372
CDOM:15
Total Acreage:1/2 Acre to 1 Acre
Square Foot Source:Builder
LP/SqFt:$186.15
Pool: Community
Garage Carport:3 Car Garage
Taxes:$3,532
Style: Single-Family Home
Location:Sidewalk, Street Paved
Pets Allowed Y/N: Yes
Minimum Lease Period:7 Months
Legal Subdivision Name:SUMMERLAKE
Construction Status:Pre-Construction
Projected Completion Date:08/31/2018
Garage/Carport:3 Car Garage, Attached, Door Opener, Side Rear Entry








