
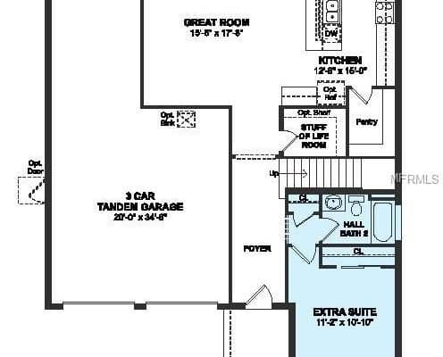
Under Construction. Estimated completion date September 2018. Fantastic 5 bedroom two story home with 10 ft. ceiling on the first floor. 42″ Upper Kitchen Cabinets with granite counter tops and all stainless appliances including the refrigerator! Washer and Dryer included as well as whole house window package! Wonderful balcony off the master. Gas community. Tankless water heater. Deep homesite with room for a pool. Gourmet Kitchen! Turn key home! 3 car tandem garage, community pool and zoned for Windermere High School.
$445,990
Active
Year Built:2018
County: Orange
List Price:$445,990
ADOM:3
Beds:5
Baths:4
Heated Sq Ft:2,834
CDOM:3
Total Acreage: Up to 10,889 Sq. Ft.
Square Foot Source: Public Records
LP/SqFt:$157.37
Pool: Community
Garage Carport:Yes, Attached, 3 Spaces
Taxes:$832
Style: Single-Family Home
Pets Allowed Y/N: Yes
Minimum Lease Period:7 Months







