
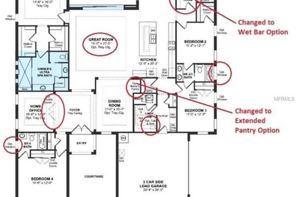
Pre-Construction, to be built. Estimated completion 10/31/18. One story home on Lake Hancock. LAKE FRONT LIVING WITHOUT BREAKING THE BANK… one of the last chances to build BRAND NEW and have dockable lot on sought after Lake Hancock. Beautiful lake view from your front porch. RAPARIAN rights included with this home for under $700k! A spacious open concept great room, 4 bedrooms and a home office. AMAZING ONE STORY WITH HIGH CEILINGS and COURTYARD ENTRY ! 3 CAR SIDE ENTRY GARAGE and BUILD YOUR OWN DOCK ON LAKE HANCOCK directly across from your home…Many upgraded finishes! All common areas will have wood look tile flooring along with upgraded designer options will be throughout this home! Enjoy one of the last few lake lots available in Summerlake with boat accessible shopping, dining and entertainment of Hamlin Groves. Finish notes: Quartz counters through out, Staggered Gourmet with Stainless Steel Hood, Oversized Master Bath shower, upgraded cabinets, wood look flooring in all common areas.
$699,990
Active
Year Built:2018
County: Orange
List Price:$699,990
ADOM:1
Beds:4
Baths:3/1
Heated Sq Ft:3,084
CDOM:158
Total Acreage: 1/4 Acre to 21779 Sq. Ft.
Square Foot Source: Public Records
LP/SqFt:$226.97
Pool: Community
Garage Carport:3 Car Garage
Taxes:$1,517
Style: Single-Family Home
Location: Sidewalk, Street Paved
Pets Allowed Y/N: Yes
Minimum Lease Period:7 Months
Garage/Carport: 3 Car Garage, Attached, Door Opener, Side Rear Entry
Construction Status:Pre-Construction











